* Please note that rent will be increased to $1580 per week from - 14 July 2026.
Coastal Oasis in Palm Beach!
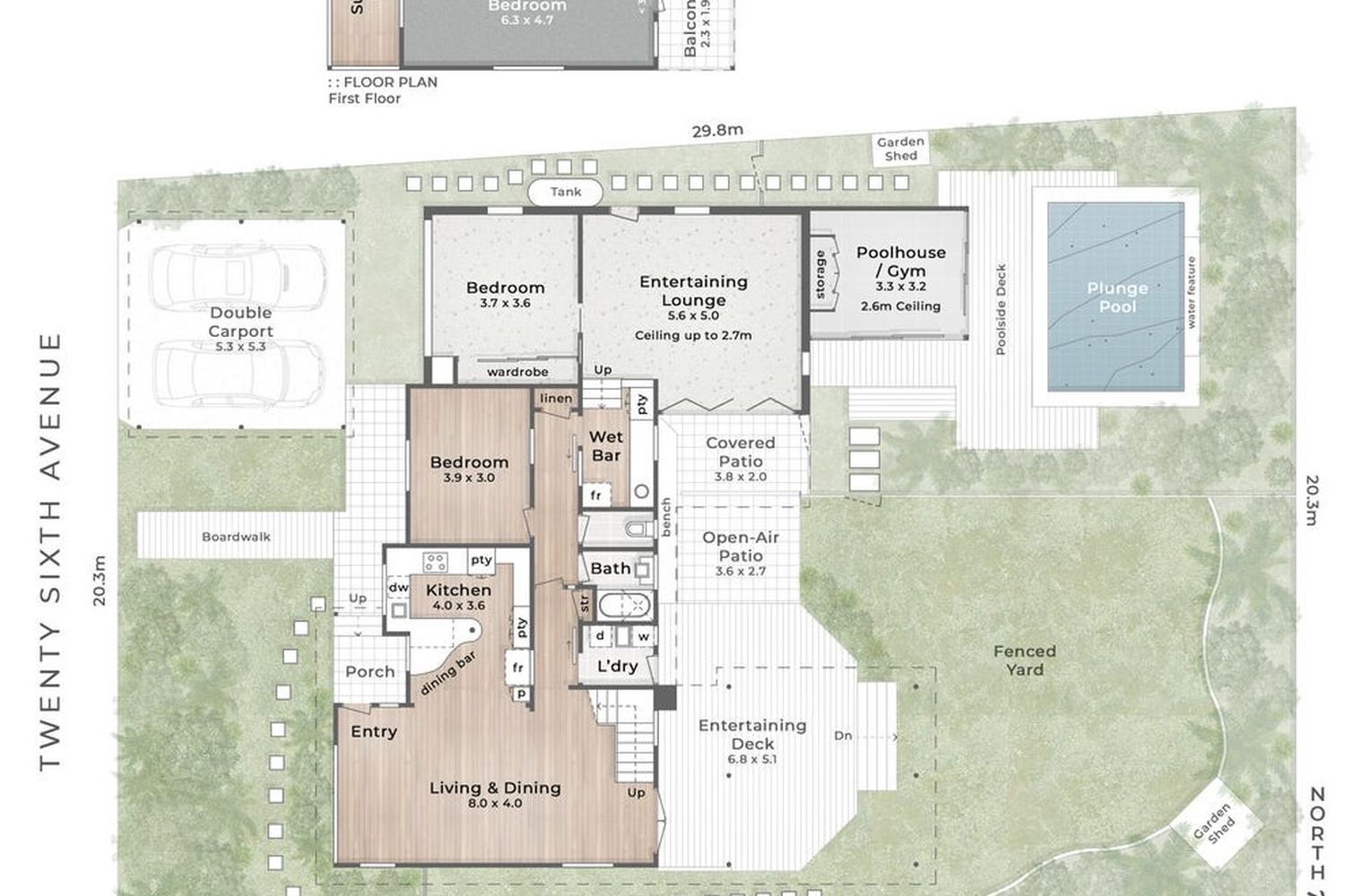
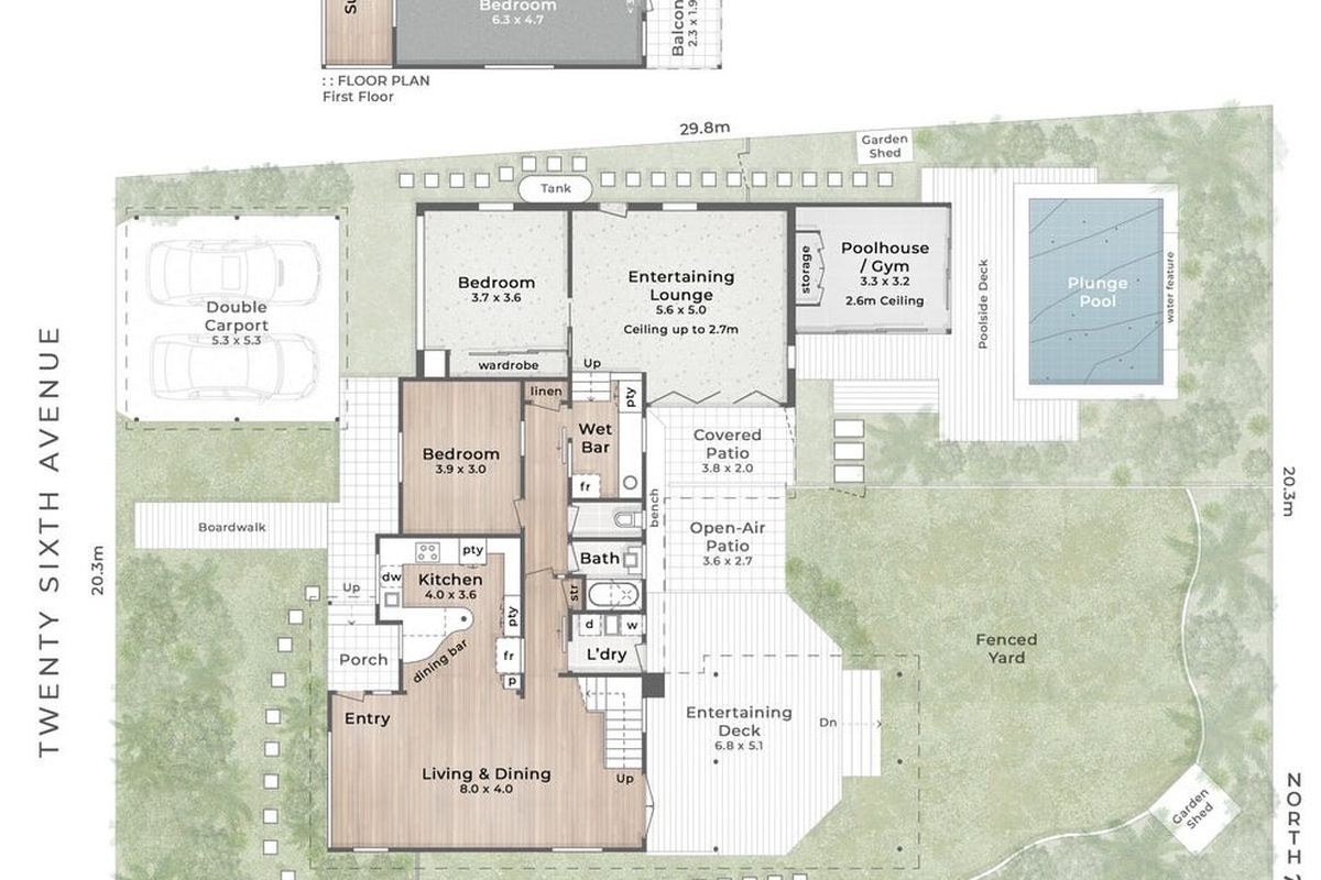
Positioned in a sought-after Palm Beach pocket, just moments from Tallebudgera Creek, this stylish dual-level home on a 617m² block offers space, charm, and flexibility. The main residence features bright, airy interiors, timber floors, a cheerful kitchen, and an open-plan living area that flows to a large entertaining deck. Upstairs, enjoy hinterland and ocean glimpses from the master retreat with ensuite, private balcony, and sunroom/art studio.
A self-contained guest area includes a Scandi-style kitchenette, sunken lounge, one bedroom, and bathroom – ideal for multi-generational living.
Outdoors, the fully fenced backyard offers a tranquil setting with established greenery, a pool house, and a saltwater plunge pool with timber decking and water feature.
Walk to Tallebudgera Creek, the beach, cafes, parks, schools, and more. With the airport just 15 minutes away, this is coastal living with convenience and lifestyle appeal.
Main House Features:
- Bright and breezy interiors enriched with hardwood timber floors throughout living areas.
- Cheerful kitchen with 2-seater breakfast bar, stainless steel dishwasher, induction cooktop and Bosch oven.
- Spacious lounge and dining area with panelled ceiling and feature pendant lighting.
- Oversized first-floor master suite with built-in robe, ensuite with rain shower and private courtyard + enjoy views of the Hinterland and Burleigh Headland.
- Sunroom/office/art studio with louvred windows (also on first-floor).
- Expansive entertaining deck.
- Saltwater swimming pool with water feature, trimmed with timber decking.
- Fully fenced yard.
- Double carport.
- Laundry with outdoor access.
- Ceiling fans and air conditioning units.
Guest House Features:
- Stylish Scandi-styled kitchenette.
- Sunken lounge room with polished concrete flooring.
- One bedroom, one with a built-in robe.
- Main bathroom with combined shower/bath, vanity, and separate toilet.
- Air-conditioning and ceiling fans.
Other Features:
- 617m2 block.
- Pool house/gym overlooking plunge pool and gardens.
- 4kW solar system (12 panels). Save on power bills.
- Small pet maybe considered upon application.
To arrange a viewing please contact Nicole 0424 508 830 or email [email protected].
This information has been provided to us by third parties and we do not accept any responsibility for its accuracy. You should make your own enquiries and check the information so as to determine whether or not this information is in fact accurate. You must make your own assessment and obtain professional advice if necessary. * Denotes approximate measurements
















