Seldom Available, Beachfront Apartment in Small Complex on a Substantial Coastal Landholding.
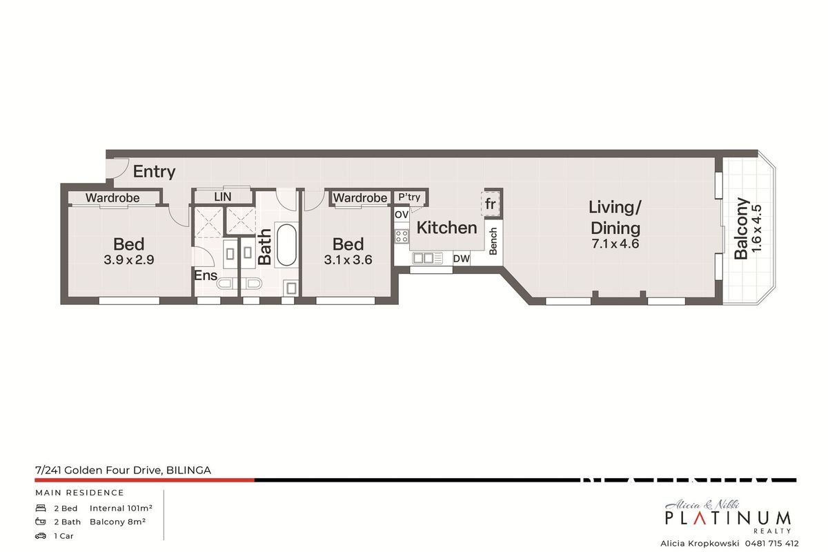
Life’s too short to miss this golden opportunity. Positioned on the top floor of a boutique building of just eight apartments on a 1,000sqm block, this classic two-bedroom, two-bathroom residence offers absolute beachfront living with uninterrupted coastal views stretching from Coolangatta to Surfers Paradise.
With no roads to cross, you can step directly from your building onto the sand and embrace the ultimate coastal lifestyle.
Elevated to capture light and sea breezes, this solidly built 1994 residence offers low body corporate fees and peaceful privacy along a quiet stretch of Bilinga’s shoreline. Here, the iconic Southern Gold Coast coastline feels like your own peaceful sanctuary on an endless expanse of beach and rolling surf enjoyed by few, yet moments from every convenience.
Property Highlights:
2 spacious bedrooms
2 bathrooms (master with ensuite)
1 secure car space
Top floor position
Boutique complex of only 8 apartments
Absolute beachfront location
Balcony with panoramic coastal views
Open plan living and dining area
Neat kitchen with ample space
Large Combined main bathroom and laundry
Tropical landscaped gardens with direct access to the Bilinga Oceanway
Enjoy the convenience of the boutique villages of Kirra and Tugun just minutes from your door, while the vibrant retail and dining precincts of Palm Beach, Coolangatta and Tweed are all within a 5–10 minute drive. Step outside to miles of uncrowded coastline and select your own stretch of beach directly in front of home, perfect for swimming, surfing, fishing or simply unwinding on the sand.
The spectacular 8km oceanfront pathway extends from Currumbin through to Rainbow Bay and Tweed, inviting morning walks, coastal runs or relaxed rides. Gold Coast Airport, Southern Cross University and John Flynn Private Hospital are all just minutes away, delivering exceptional connectivity and everyday convenience without compromise.
Contact us, to find out more.
* Disclaimer: We have in preparing this information used our best endeavours to ensure that the information contained herein is true and accurate but accept no responsibility and refuse all liability in respect of any errors, omissions, inaccuracies, or misstatements that may occur. * denotes approximate measurements.






















